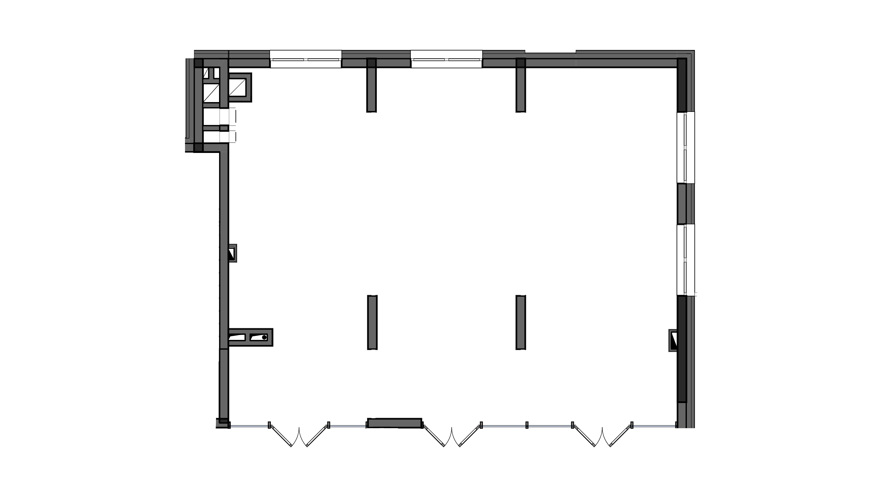
Загальна площа:
86.33 м2
Поверх:
2
Комерція:
1
Дізнатись ціну

Дякуємо за заявку!

Вашу заявку успішно надіслано, наш менеджер звʼяжеться з вами найближчим часом

Упс, здається, щось пішло не так...

Спробуйте надіслати заявку повторно, або поверніться на головну сторінку