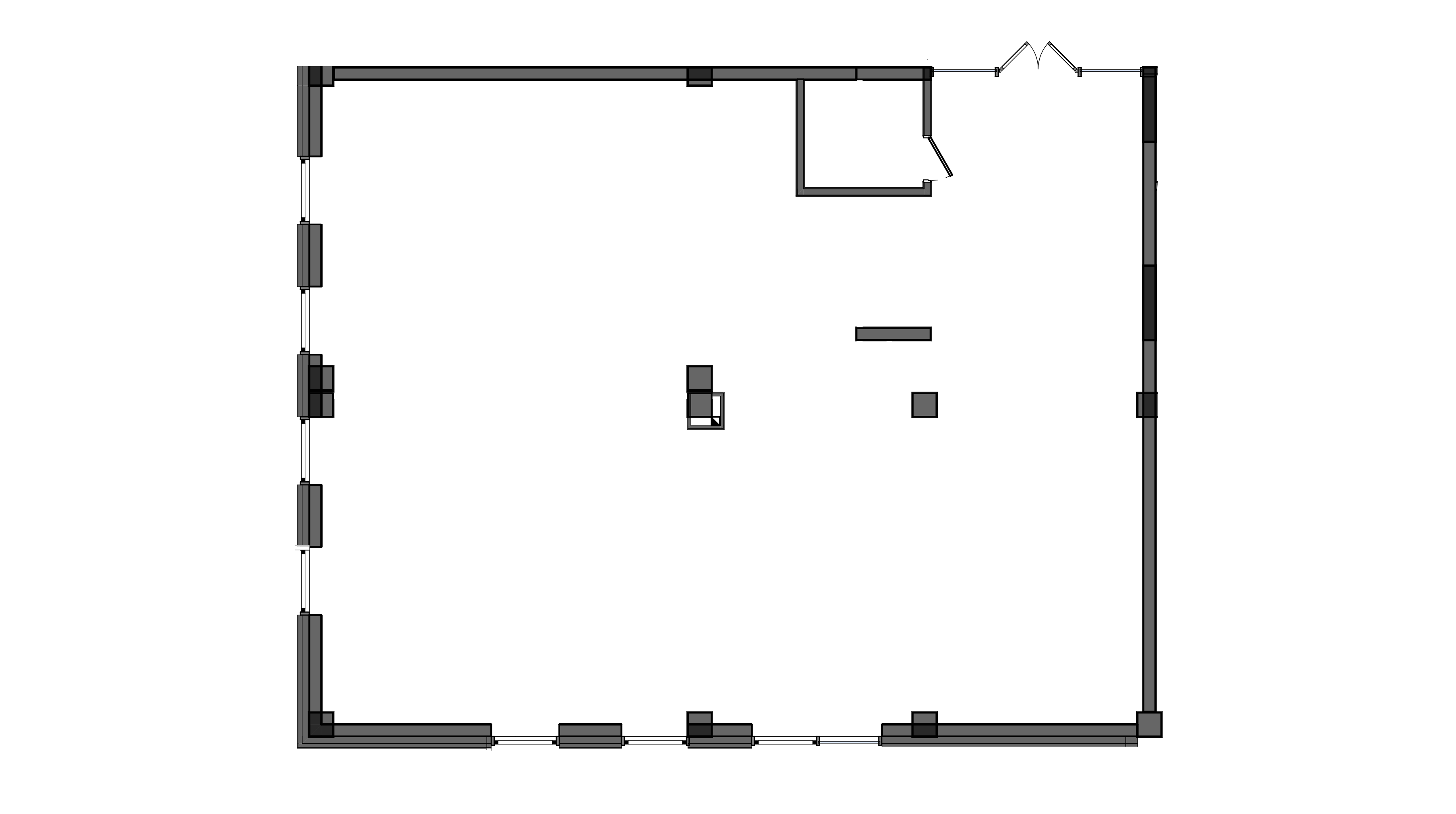
Загальна площа:
148.66 м2
Поверх:
2
Комерція:
4
Дізнатись ціну

Дякуємо за заявку!

Вашу заявку успішно надіслано, наш менеджер звʼяжеться з вами найближчим часом

Упс, здається, щось пішло не так...

Спробуйте надіслати заявку повторно, або поверніться на головну сторінку